Bijao, la nueva dimensión del lujo residencial
- Itzel Campos-Rangel
Un resort de playa ubicado a 65 minutos de la ciudad, un proyecto que promete un mar turquesa, playas de arena blanca como ningún otro en la costa del Pacífico.
La demanda de residencias de playa continúan y los promotores de proyectos han respondido apropiadamente con la construcción de originales y sofisticados diseños.
En este sentido se decidió estudiar los proyectos existentes para saber cuáles estaban desarrollados. “En esta búsqueda, nos encontramos con propuestas coloniales, españolas, griegas y mexicanas”, explica Gustavo Arango, arquitecto del proyecto Bijao.
Para crear este concepto se analizó lo que en materia de arquitectura se ha realizado en Panamá en los últimos 100 años. Una marcada influencia de la época de la construcción del Canal de Panamá fue lo que inspiró el proyecto.
Concepto.
“Todo resort debe tener un concepto que lo unifique, porque si no, es un proyecto más y que no fue diseñado”, expresó el arquitecto Gustavo Arango.
Una arquitectura de amplios portales, ventilación cruzada y eficiencia de los espacios es lo que caracteriza estas viviendas, que al igual que el hotel, se definen por los espacios abiertos, vista al mar desde cualquier punto, iluminación natural y un sinfín de detalles de madera y de líneas simples, modernas y al mismo tiempo funcionales.
Terreno.
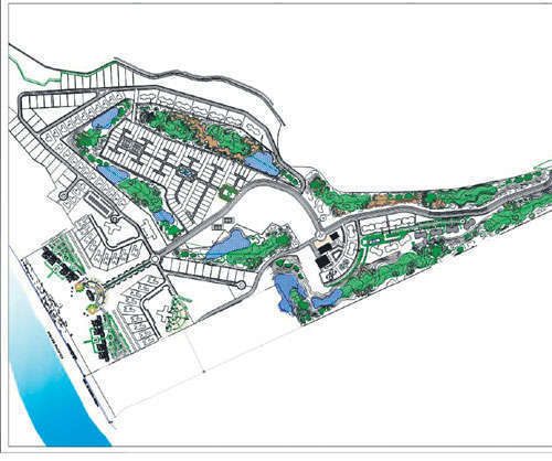
Al diseñar el proyecto se tomaron en cuenta las condiciones del terreno y del clima, ya que gozaba de una serie de riquezas naturales y distintos paisajes, como riscos, valles, lomas, acantilados, hasta un lago artificial, y se aprovechó cada uno de estos accidentes geográficos para diseñar el resort.
Tipos.
Bijao ofrece diferentes modelos entre los que podrá elegir, lotes con vista al mar, al lago o a la cancha de golf.
Las villas con amplios espacios son una buena opción, pero si es amante de los edificios, puede decidirse por Balboa o Cocoli Tower.
Los condominios Gorgas, Gaillard y Rodman son otra alternativa, que de seguro llenarán todas sus expectativas.
Dos hoteles forman parte de este complejo, una Boutique Hotel de 25 habitaciones y el Breezes de 294 habitaciones.
Con una casa club de playa ubicada estratégicamente frente al mar.
Recreación.
Más que una urbanización, Bijao está concebido como una vibrante comunidad y un estilo de vida donde puede encontrar un gimnasio completo, cancha de tenis, restaurante/bar, bohíos exclusivos para el uso de los residentes y sus invitados, y para los amantes del golf, contará con una cancha de 9 hoyos, par 36, diseñada por el reconocido Ron Garl.

Para comentar debes registrarte y completar los datos generales.